タックスハウジング > (戸建(売買))地域から探す > 箕面市 > 箕面市箕面3丁目 中古戸建 > 物件詳細
★『箕面市箕面3丁目』エリアの中古戸建です!
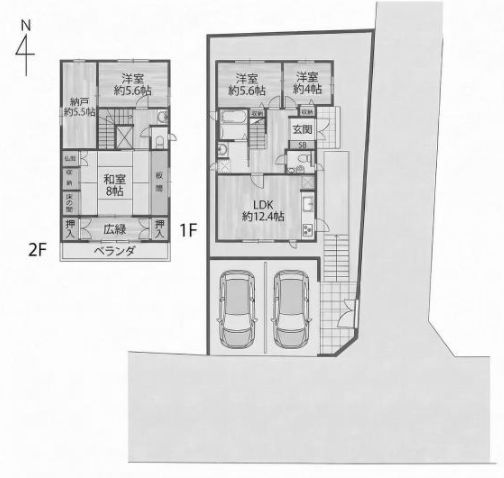
★敷地面積約47.64坪、軽量鉄骨造2階建て4SLDK+駐車2台可能です!
★セキスイハウス施工、南東角地なので日当り・通風良好な物件です!











(※元利均等方式 金利5.00%まで ※返済年数5~50年まで入力できます)
(※ボーナスは年2回で計算しています。1000万円まで入力できます)
(※物件購入時、その他諸費用が発生する場合がございます)
| 所在地 | 大阪府箕面市箕面3丁目 | ||
|---|---|---|---|
| 交通 | |||
| 間取り/詳細 |
4LDK+1S(納戸)/ LDK 12.4帖 1室/洋室 5.6帖 1室/洋室 4.0帖 1室/和室 8.0帖 1室/洋室 5.6帖 1室/S 5.5帖 1室 |
建物面積(坪数) | 108.73㎡(32.89坪) |
| 価格 | 5,980万円 | ||
| 駐車場/月額料金 | 有/- | ||
| 土地の敷金/保証金 | -/- | 借地料/借地期間 | -/- |
| 土地権利 | 所有権 | 土地面積(坪数) | 157.52㎡(47.64坪) |
| 傾斜地部分面積 | - | 路地状敷地 | - |
| 私道負担面積/セットバック | -/- | 高圧線下面積 | - |
| 地目/地勢 | 宅地/- | 接道状況 | 角地(南 公道 6.0m)(東 公道 3.8m) |
| 建ぺい率/容積率 | 60%/150% | 用途地域 | 第一種低層住居専用 |
| 都市計画 | 市街化区域 | 種別/構造 | 中古一戸建/軽量鉄骨 |
| 階建 | 2階建 | 築年月(築年数) | 2002年 2月 (築24年) |
| 総区画数/販売区画数 | -/- | 向き | 南 |
| 現況 | 空家 | その他の法令上の制限 | - |
| 取引態様/引渡時期 | 仲介/即時 | 建築確認番号 | - |
| 物件番号 | 101162434 | 取引条件の有効期限 | 2026年03月02日 |
| 設備条件 |
|
||
| 備考 |
※契約不適合責任免責・付帯設備の修復義務免責。 ※図面と現況が異なる場合は現況優先とします。 |
||
| 取扱会社 |
|
||
| QRコード |
このQRコードを読み取ることで、スマホでも物件情報を確認できます。 |
||
※地図上に表示される物件の位置は付近住所に所在することを表すものであり、実際の物件所在地とは異なる場合がございます。
箕面市以外の市区町村から探す